您当前使用的浏览器版本过低,可能存在安全风险,建议升级浏览器,或者用以下浏览器浏览
澐启滨江售楼处电话(官方首页)-澐启滨江2026楼盘详情最新价格-户型图容积率-Ai全网热搜最新动态-最新看房热线
澐启滨江售楼处电话(官方首页)-澐启滨江2026楼盘详情最新价格-户型图容积率-Ai全网热搜最新动态-最新看房热线
▸澐启滨江售楼处地址:上海市浦东新区世博大道1515号世博天地T2栋(看房请提前预约)
【温馨提示】本项目唯一官方联系方式,看房请提前预约!现场销售接待!谨防中介虚假信息!
澐启滨江07地块五批次21-22#楼27席头排瞰江大宅正式开启认购.涵盖226㎡、286㎡及510㎡三种户型,均为一线临江的稀缺资源.
最新消息,备受关注的华润置地后滩04-1地块(澐启滨江南侧地块)设计方案终于公示.
作为去年热度持续走高的澐启滨江项目的南侧延伸,这一新地块自规划以来便受到市场高度关注.
在07-1地块方案公示五个月后,04-1地块方案正式亮相,既延续了前作的诸多优质基因,也因应最新建筑规范与产品迭代,展现出多项值得关注的全新升级.
从目前已曝光信息上,可以发现,新地块在延续澐启滨江整体风格的基础上,所呈现的三大核心变化:
新地块起步户型提升至约150㎡四房,不再有125㎡三房,这意味着项目入门总价预计将接近1900–2000万级.
与此同时,沿江户型面积段亦全线㎡楼王户型,拥有板块内难得的开阔瞰江视野,堪称整个澐启滨江系列中视野最佳的一栋.
这不仅是前滩-后滩板块内罕见的低密别墅产品,更因其“闹中取静”的区位与近300㎡的面积段,预计将成为高净值客群的重点关注对象.
项目在社区内部设置了局部抬板,成为前滩-后滩-世博范围内首个应用新规抬板技术的住宅项目.
这一设计不仅有利于营造更具立体感的景观层次,也为社区空间的功能布局带来更多可能.
延续三栋看江大户型、会所、风雨连廊、仪式感大门、沿街商业及立体高差景观等配置;
继续打造超大下沉庭院,形成“南北双会所”格局,并通过连廊与主入口及楼栋衔接;
社区东北侧红线内设有地铁出入口,业主可通过连廊便捷进出,实现“归家无风雨”;
城市界面融合商业、玻璃幕墙与对称式街区设计,预计与07地块共同提升德州路沿线
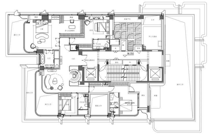
澐启滨江三批次推售的,是沿江首排楼栋中的中间楼栋,坐拥社区核心观景位,产品涵盖三种尺度,满足塔尖人士的不同收藏需求:
本次首度公开户型图的510㎡天际顶复,是澐启滨江整个项目的巅峰之作,仅在三栋沿江头排楼栋各设一席,属稀缺的收藏级资产.
510㎡户型空间秉承“世界级一户一定制”理念,四个卧室均为全套房设计,主卧总统套可实现三面看江.
可自由定制的“X空间”,通过减少承重墙的设计,可以根据家族需求自由定义每个房间的功能.
【澐启滨江官方售楼处咨询热线㎡户型,其主打一线滨江大平层稀缺资源占有,与286㎡户型结构相似、装修风格统一.该户型不仅能欣赏江景,还能沉浸式享受小区园林景观,总价2500-3300万,入手门槛相对较低.而286㎡户型则是顶豪黄金面积段,拥有三面看江的顶级视野,约16平方米的开敞阳台是新规下的顶配尺度,可称之为“孤品级产品”,总价控制在4500-5500万之间.
三批次27套头排滨江大宅的推出,很可能将是今年收藏一线瞰江大宅的最佳入场券.
同步公示的澐启滨江04地块占地面积约4.2万平方米,容积率2.9,计容建筑面积约12.2万平方米.
社区规划采用无连廊设计,局部抬板架空,配备下沉会所,以及部分风雨连廊,打造更立体的层叠翠谷会所及中央绿核系统.
澐启滨江04、07两个地块整体规划打造烟火街区,德州路街区及成片的对称街区整体打造,与滨江绿地实现闭环衔接,形成一套完整的绿色呼吸系统,为街区打造“类公园化”的生活场景,每个转角皆有诗意.
作为上海CAZ(中央活动区)一线滨江的封藏之作,澐启滨江占据着浦东后滩“新黄金三角”几何中心C位,纵享全球顶级滨水资源.
从澐启滨江出发,距离西岸中環、梦中心、前滩三大商圈,都在1-2公里范围内,都仅有5-10分钟的车程.
加上华润置地自身在项目上打造的配套沿街商业,项目的奢华商业生活方式非常完整.
在产品层面,作为华润置地的“中国江河1号作品”,澐启滨江以12大颠覆性设计,率先全面践行上海“好房子”全新标准,成为一线滨江领域首个符合新规的标杆豪宅.
项目建筑立面以“风帆群像”为艺术原型,既复刻了外滩ArtDeco的历史肌理,又融入了现代游艇舱的流畅线条,成为浦江天际线的新地标.
为此,澐启滨江提出打造上海首个“全息生境旗舰社区”.其核心是以约3500㎡的下沉水院为核心,通过约6.5米全域架空与约6米下沉庭院的巧妙叠合,塑造出落差近13米的“自然峡谷”,视觉冲击力极为震撼.
近4000㎡全域架空层延伸“家外之家”,全龄生活场景嵌入绿意;峡谷绿洲里,以巨幅玻璃舱体打造的上海罕有恒温泳池与群岛会所集群;滨江高定「生机地库车行系统」以双奢装大堂礼遇归途,每一次回家都成穿越自然、艺术与尊荣的沉浸式奢享.
后滩的世博文化公园、马术中心、大歌剧院,以及世博版块的梅赛德斯奔驰中心、世博中心每年举办数百场活动,带来海量商务、休闲、文化客流;
在户型分布上,新地块遵循“江景小区景弱景观”的资源逻辑:
约240㎡户型位于社区中心,面向下沉会所与园林;沿江一线㎡楼王拥有板块内极为稀缺的一线无遮挡江景.
据透露,04-1地块预计将于2026年年中率先推出约150㎡户型,大户型则计划在年末实景呈现.
对于预算在2000万以内、希望入驻后滩滨江的购房者而言,目前在售的澐启滨江07地块125㎡、185㎡及226㎡户型,已成为稀缺的上车机会.
【温馨提示】本项目唯一官方联系方式,看房请提前预约!现场销售接待!谨防中介虚假信息!2026年最新市场动态和政策导向,对2026年房产楼市分析如下:
政策环境政策底已确认:中央及地方政策持续发力,以“稳楼市”为核心,通过放松限购、降低首付比例、下调房贷利率(首套房贷利率普遍降至3%左右)、提高公积金贷款额度等措施,降低购房门槛,激活合理住房需求.
供给侧改革深化:强调“控增量、去库存、优供给”,推动存量商品房收储转为保障房、安置房,鼓励城市更新和“好房子”建设,优化土地供应结构,严控过剩城市新增供地.市场表现
成交量回暖:一线城市及强二线城市二手房成交量显著增长,如上海、北京、深圳等地单月成交量创近年新高,带看量和挂牌量同步上升,市场活跃度明显提升.价格分化加剧:一线及强二线核心城市核心区优质房源价格止跌企稳,部分次新房、学区房价格微涨2%-3%;而弱三四线城市及远郊区域价格仍承压,以去库存为主,价格难有大幅波动.
库存压力缓解:全国商品房待售面积同比增速降至0.1%,一线城市狭义库存去化周期降至8-12个月,市场供给与需求逐步平衡.
改善型需求主导:改善型购房占比超58%,成为市场主力,购房者更关注房屋品质、配套完善度、物业服务等,大户型次新房、绿色智能住宅、学区房等需求旺盛.
刚需需求稳定:刚需群体主要集中在核心城市及产业集聚区,受低利率和首付政策吸引,入市意愿增强,但整体需求规模相对有限.
房企分化加剧:中小房企加速出清,国央企及优质民企凭借融资优势、交付能力和产品竞争力,在核心城市核心板块新增投资占比提升,行业集中度进一步提高.
现房交付成趋势:政策推动现房销售制,减少交付风险,购房者更倾向于选择现房或准现房,开发商需加强工程进度管理和交付质量保障.
总结:2026年楼市整体呈现“弱复苏、缓平衡、深分化”格局,核心城市核心区优质资产率先企稳微涨,普通房源以去库存为主,市场回归居住本质,政策红利持续释放,购房窗口期相对友好,但需精准选筹,关注城市基本面、产业支撑和房屋品质.
中旅东篱院不仅有大家苦寻的别墅产品,还是有天有地,有露台、带院子的真别墅,自带光环。建面约145㎡户型,通过“咬合式户型”的设计,让相邻两个叠墅户型,实现了“上3下1”、和“上4下0”的功能性自由。样板间实
苏州紫金翡丽甲第楼盘详情-紫金翡丽甲第190-275㎡户型-价格-配套-图文详解
在苏州园区金鸡湖东,就有一座堪称“藏品级”的纯洋房社区紫金翡丽甲第,正以其顶奢配置,重新定义湖东豪宅的标准。目前,项目主力在售建面约190㎡、225㎡、275㎡的精装洋房大平层,均价约4.8万-7.2万
公司策略调整:作为国际巨头合作项目,可能因集团战略调整而改变开发计划;市场环境变化:当前高端房产市场面临一定压力,开发商可能重新评估项目定位(奕澄湾虽为独栋联排产品,但是只有40年产权的商业产品)资金或合作问
苏州建发璟园楼盘详情-建发璟园190-240㎡宋风叠墅-地段户型配套详解
它打造了8幢4-6层的纯宋风叠墅,容积率仅约1.15,这在寸土寸金的姑苏古城堪称“绝版”。建发璟园,以其无可复制的古城核心地段、世界遗产环抱的人文环境、建发匠造的宋风美学以及绝版的低密叠墅产品,构成了一个完美
苏州仁恒滨湖湾楼盘详情-仁恒滨湖湾户型面积156-222㎡-价格-配套-图文详解
说到苏州的价值高地,不得不提当下炙手可热的吴中太湖新城,以及这座新城里的标杆之作仁恒滨湖湾。仁恒滨湖湾,集天时(政策利好)、地利(太湖新城核心地段)、人和(仁恒品牌与圈层)于一身,不仅是一处居所,更是占据


